Superl is a commercial insulation contractor that can install thermal, vapor, fire, smoke, and sound control systems


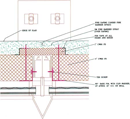
1/2 Plan at Spandrel Jamb (N.T.S.)

bg.gif (2808 bytes)
email info@superl.net
Corporate Headquarters
7301 Apollo Court, Lino Lakes, MN 55014
Phone: (763) 571-7464 Fax: (763) 571-7646